- Living area
- About 107 m²
- Contents
- About 556 m³
- Construction year
- Built in 1996
- Number of rooms
- 3 rooms (2 bedrooms)
The apartment complex 't Hovevelt is well maintained and indeed has a healthy active home owners' association (VVE).
The building is equipped with a lift and videophone system and is suitable for people with disabilities. You have your own indoor garage, accessible via an interior passage and operated by remote control. Behind the complex there is sufficient parking space for receiving your guests.
* Year of construction: 1996
* Living area: 107 m² attic 32m²
* Content: 556 m³
* Bedrooms: 2
* Roof terrace: 90 m²
* Garage: 23 sqm
Classification
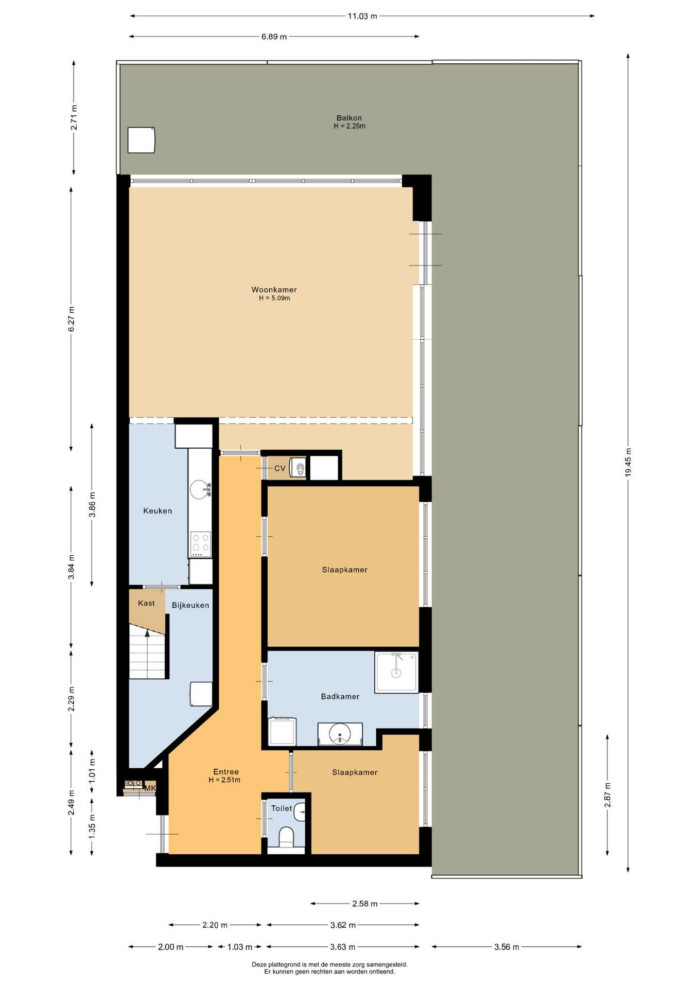
You enter the penthouse through the grand hall with a toilet and fountain. From the hall, you can also reach 2 (sleeping) rooms and the bathroom. Both rooms are on the front side. The bathroom features a vanity unit, a glass shower cabin, and white goods connections.
From the hallway, a glass door leads to the light and spacious living room with high ceilings and large window panels. Through the sliding door, you reach the impressive roof terrace, partially covered, fully tiled, and located on the west side. Here you can enjoy the evening sun, being outdoors, and the beautiful view over the lively village center of Havelte. The semi-open kitchen offers plenty of storage space and is equipped with various built-in appliances such as an induction cooktop, hood, refrigerator, oven, and dishwasher. The living floor has a nice PVC floor.
Adjacent is the utility kitchen with ample storage space and connections. From this utility kitchen, you access a fixed staircase to the floor above featuring a spacious attic, perfect for storage or as a hobby room, but it also offers the possibility of creating a third bedroom. This floor is equipped with flooring.
Details:
* Royal apartment with lots of natural light
* Fantastic spacious roof terrace with nice view
* Reserved entrance
* Large attached garage and storage
* Wheelchair accessible
* Near the shops
* Energy label B
* VVE contribution € 275,- p.m.
Environment:
An absolute plus point is the favorable location in relation to the village center with its many amenities. Everything you need literally lies around the corner; just a short walk into town with its various facilities such as supermarkets, bus stops, cozy shops and hospitality businesses. Also not missing out are a library/cultural center, doctors' offices, a golf course and swimming pool. And do you want to get back to nature? The extensive forests, heathlands, sand dunes and meadows invite you in. Meet the Holtinger sheep flock with its beautiful sheepfold, dolmens and burial mounds as well as the nature reserves Uffelter binnenveld and Ooster- en Westerzand. It is therefore not without reason that Havelte calls itself the pearl of Drenthe.
In and around the village of Havelte, which is approximately 12 km from Meppel and Steenwijk, there is much to experience. Via the nearby motorways (A28/A32) you can quickly reach Meppel or other parts of the country.
A penthouse like this rarely comes on the market...
Be surprised by the space, the comfort and the unique location, make an appointment today for a viewing!
Transfer
- Asking price
- € 525,000 k.k.
- Status
- Sold
- Acceptance
- In consultation
- Contribution VvE
- € 275 per month
Construction
- Object type
- Penthouse apartment
- Type of construction
- Existing construction
- Construction year
- 1996
- Type roof
- Roof tile-covered
Area and content
- Living area
- 107 m²
- Contents
- 556 m³
- Other indoor space
- 32 m²
- External storage space
- 23 m²
- Building-related outdoor area
- 90 m²
Classification
- Number of rooms
- 3 rooms (2 bedrooms)
- Number of bathrooms
- 1 bathroom
- Bathroom facilities
- Vanity cabinet, walk-in shower, washing machine connection
- Number of floors
- 2 living levels
- Provisions
- Mechanical ventilation, TV cable, elevator, sliding door
Energy
- Energy label
- B
- Energy label registration
- 29-03-2022
- Isolation
- Completely isolated
- Heating
- CV boiler
- Hot water
- CV boiler
- Boiler
- HR combi boiler gas heated from 2010 (owned)
Outdoor space
- Location
- In the center, with a clear view, in a wooded area
- Balcony / roof terrace
- Roof terrace
- Garden
- Sun terrace
Mine space
- Provisions
- Equipped with electricity
Garage
- Type garage
- Ingress
- Capacity
- 1 car
- Provisions
- Electra, electric door
Parking facility
- Type of parking facility
- At home
VvE check list
- Company Registration at KvK
- Yes
- Annual meeting
- Yes
- Periodic contribution
- Yes, €275 per month
- Reserve fund present
- Yes
Energy consumption in Havelte
Energy label this property
Energielabel B
Energy label publication: 29-03-2022
Annual electricity consumption
(Average apartment in Havelte)
Annual gas consumption
(Average apartment in Havelte)
* Figures are derived from CBS and are intended as an indication and may differ for this property
Mortgage costs indicator
Own contribution:
Savings / excess value
Interest:
Lowest 10-year interest rate
Lowest 10-year interest rate
2,78% - Woonfonds Groen Woonge... - NHG
3,04% - Argenta Groen Hypothee... - 80%
Lowest 20-year interest rate
3,18% - Argenta Groen Hypothee... - NHG
3,39% - Argenta Groen Hypothee... - 80%
Lowest 30-year interest rate
3,35% - Argenta Groen Hypothee... - NHG
3,56% - Argenta Groen Hypothee... - 80%
Mortgage:
Gross monthly expenses: € 0 p/m
Net monthly expenses: € 0 p/m
How do we calculate this?
The interest rate is based on the lowest 10-year fixed rate for a single mortgage part. The stated rate (3.04% zonder NHG) was verified on 25-11-2025. This calculation is based on an annuity mortgage that is fully repaid, with monthly payments remaining the same throughout the entire term. The actual interest rate and net monthly costs may vary depending on your personal situation and the mortgage provider. Consult a financial advisor for an accurate calculation and advice. No rights can be derived from this calculation; it is for indicative purposes only.
Documentation
Cadastral map
Living environment
Visit our website
Viewing
To make an offer
Valuation
Search query
Download everything
Viewing solar limits
On the map
Residents of Havelte
Statistics for postal code area 7971
- Total number of inhabitants
- 3645 residents
- Men
- 49%
- Women
- 51%
Residents of Havelte
Statistics for postal code area 7971
- until 15 years
- 12%
- 15 to 25 years
- 10%
- 25 to 35 years
- 15%
- 45 to 65 years
- 30%
- 65 and older
- 33%
Households in Havelte
Statistics for postal code area 7971
- Single without children
- 36%
- Multiple persons without children
- 37%
- Households without children
- 73%
Households in Havelte
Statistics for postal code area 7971
- Households with one child
- 6%
- Households with multiple children
- 22%
- Households with children
- 28%
Homes in Havelte
Statistics for postal code area 7971
- Housing for 1945
- 12%
- Houses between 1945 and 1965
- 11%
- Houses between 1965 and 1975
- 22%
- Houses between 1975 and 1985
- 12%
- Houses between 1985 and 1995
- 24%
Homes in Havelte
Statistics for postal code area 7971
- Homes between 1995 and 2005
- 10%
- Homes between 2005 and 2015
- 7%
- Homes after 2015
- 1%
- Rented apartments
- 30%
- Purchase properties
- 70%
Other income Havelte
Statistics for postal code area 7971
- Average WOZ value
- € 265.000,-
- People under 65 with disability benefits
- 7%
Other income Havelte
Statistics for postal code area 7971
- Addresses per square kilometer
- 393
- "Urbanity (scale 1 to 5)"
- 20%
Zandbergen Makelaardij
If you have questions or would like to schedule a viewing, you can use the form on the right. You will then be contacted shortly thereafter.
Egginklaan 2 - 4
7971 CA, Havelte
0521 - 340 043 info@zandbergenmakelaardij.nl www.zandbergenmakelaardij.nlMake contact
About us
Buying or selling a house is not an everyday occurrence. It requires good preparation and guidance. At Zandbergen Real Estate, you do not have to face it alone. Our team – consisting of Gerben (Registered NVM Realtor), Rik (NVM Realtor), Annemieke (office staff) and Martine (Assistant Realtor) – is ready to assist you with expertise and enthusiasm.
We are locally rooted in the Meppel, Westerveld region and surroundings. You can find us at sports clubs, on the football field, or during a walk through the beautiful nature areas in Drenthe and Overijssel. We are also active on a social level: we support local sports clubs and like to collaborate with entrepreneurs from the region.
Zandbergen Makelaardij was founded in 2004. Since then, we have helped countless people find or sell their home. Our knowledge remains up-to-date thanks to regular training sessions. Furthermore, we are members of the NVM, where Gerben Zandbergen plays a leading role as chairman of the Drenthe branch.
Are you looking for an agent who knows the area, is involved and stands for quality? We would love to meet you!
Latest reviews
-
Klaproosweg 59
I am very satisfied with the service. Everything was pleasant and professional, with clear communication and good guidance.
-
Kick Harms
Zeer onprofessioneel bedrijf. Mijn woning werd getaxeerd samen met z'n broer die zich voordoet als bodyguard. Met een hoop bombarie stormen...
-
Korenbloemweg 2 g
From the initial conversation to the end, always clear communication. We were well informed about every viewing. We are more than satisfied...